ID CP2783739

Spațiu comercial stradal de excepție – 180 mp utili | Sibiu

ID CP2783739

1,500 € (negociabil) + 21% TVA

Spațiu comercial de închiriat
Nord-Vest, Sibiu
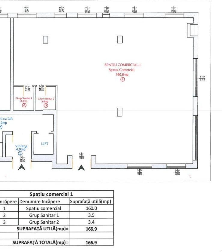
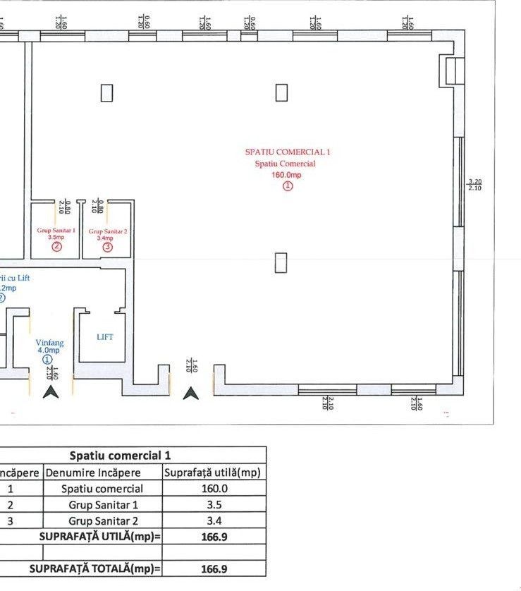
180 mp
2025

Descoperă un spațiu comercial cu adevărat remarcabil, amplasat stradal, într-o zonă cu vizibilitate excelentă și trafic intens – ideal pentru orice tip de afacere care își dorește expunere și imagine!

🏢 Suprafață generoasă: 180 mp utili

🚪 Două intrări – flexibilitate pentru clienți sau livrări

🚻 Două băi moderne

🌡 Încălzire proprie – centrală termică și calorifere

🪟 Geam vitrină amplă – perfectă pentru promovare și luminozitate naturală

🅿 5 locuri de parcare private

📜 Acte și titlu clare, gata pentru tranzacționare

Un spațiu modern, luminos și elegant, perfect pentru showroom, birouri, cabinet medical, salon sau concept store.

Totul este pregătit – tu vii doar cu ideea ta de succes!

📞 Simona Panoiu – Consultant Imobiliar

Tower Imob Sibiu

📱 0745 127 561

Citește mai mult

  • Tip imobil
    Bloc de apart.
  • Trafic pietonal
    Intens
  • Etaj
    Parter
  • Număr camere
    2
  • Număr băi
    2
  • Suprafață utilă
    180 mp
  • Disponibilitate
    Imediat
  • Compartimentare spațiu
    Open space
  • Număr locuri parcare
    5
  • An construcție
    2025
  • Construcție nouă
    Da

Facilități

Apă
Canalizare
Curent
Gaz
Simona Pănoiu - Tower Imob
Simona Pănoiu
Consultant Imobiliar

0745127561


Solicită chiar acum o vizionare
Telefon
Sună acum Solicită vizionare
Necesare:

Site-ul nu poate funcționa corect fără aceste cookie-uri. Vezi cookie-urile

Statistică:

Strângem statistici anonime despre voi, vizitatorii unici, pentru a vă îmbunătăți experiența dumneavoastră. Vezi cookie-urile

Marketing:

Pentru a ne promova mai eficient serviciile noastre, folosim cookies pentru a vă identifica și a vă oferi proprietăți și servicii personalizate. Vezi cookie-urile

Acest site folosește cookies, află detalii. Alege ce tipuri de cookies dorești să permitem: