ID CP2608349

Spațiu de birouri de închiriat – bloc nou, Turnișor

ID CP2608349

500 € (negociabil)

Spațiu de birouri de închiriat
Turnisor, Sibiu
55 mp
2021

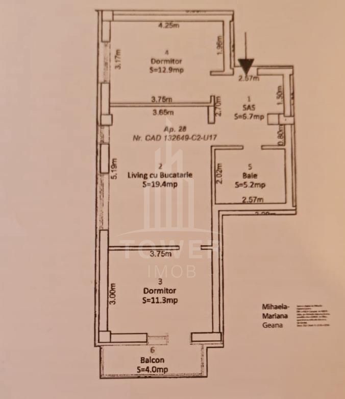
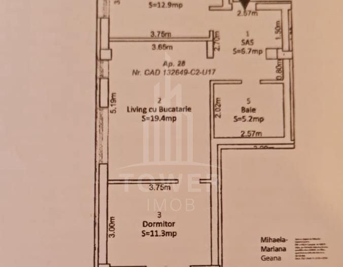
Închiriez spațiu ideal pentru birouri, situat la etajul doi, al unui bloc nou construit în 2021, în zona Turnișor. Spațiul este finisat la cheie și are o suprafață utilă de 55 mp, compartimentată astfel:

hol de acces

3 încăperi pentru birouri

baie proprie

balcon de 4 mp

Locuri de parcare incluse!

Spațiul este luminos, modern și gata pentru a fi utilizat imediat. Se pretează perfect pentru birou de firmă, cabinet, atelier de creație sau alte activități similare.

📍 Locație: Turnișor

📐 Suprafață utilă: 55 mp + balcon + grădină

🚗 Parcare: 2 locuri de parcare incluse, unul suprateran si unul subteran

💶 Preț chirie: 500 EURO/lună + garantie

Pentru informatii suplimentare ma puteti contacta la nr. 0727958004 .

Citește mai mult

  • Tip imobil
    Bloc de apart.
  • Etaj
    2
  • Număr camere
    3
  • Număr băi
    1
  • Suprafață construită
    65 mp
  • Suprafață utilă
    55 mp
  • Disponibilitate
    Imediat
  • Suprafață totală birouri
    55 mp
  • Compartimentare spațiu
    Compartimentat
  • An construcție
    2021
  • Construcție nouă
    Da

Facilități

Internet
Telefon
Claudia Achim - Tower Imob
Claudia Achim
Consultant Imobiliar

0727958004


Solicită chiar acum o vizionare
Telefon
Sună acum Solicită vizionare
Necesare:

Site-ul nu poate funcționa corect fără aceste cookie-uri. Vezi cookie-urile

Statistică:

Strângem statistici anonime despre voi, vizitatorii unici, pentru a vă îmbunătăți experiența dumneavoastră. Vezi cookie-urile

Marketing:

Pentru a ne promova mai eficient serviciile noastre, folosim cookies pentru a vă identifica și a vă oferi proprietăți și servicii personalizate. Vezi cookie-urile

Acest site folosește cookies, află detalii. Alege ce tipuri de cookies dorești să permitem: