ID CP2710135

Duplex de Vânzare în Șelimbăr – 4 Camere | Mobilat și Utilat | 132 mp Utili |

ID CP2710135

235,000 € (negociabil)

Casă / Vilă cu 4 camere de vânzare
Selimbar
132 mp
2008

📍 Locație: Șelimbăr, într-o zonă rezidențială liniștită, cu acces rapid către orașul Sibiu, centre comerciale, școli și transport public.

🏠 Duplex P+1+pod (neamenajat), construcție solidă finalizată în 2008

🔧 Se vinde complet mobilat și utilat

📐 Suprafață utilă totală: 132.3 mp

🧱 Suprafață construită desfășurată: 162 mp

🌳 Teren liber în curte: aproximativ 220 mp

🚗 Platformă betonată pentru 2 locuri de parcare

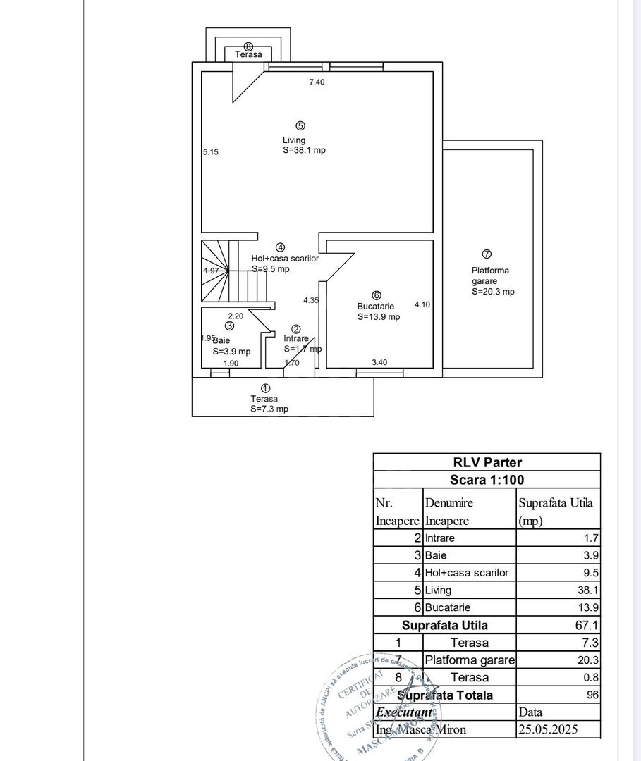
Parter (67.1 mp utili):

🛋️ Living generos – 38.1 mp

🍽️ Bucătărie separată – 13.9 mp

🚿 Baie – 3.9 mp

🔄 Hol + casa scării – 9.5 mp

🚪 Intrare – 1.7 mp

🌅 Terasă – 7.3 mp

🚗 Platformă garare – 20.3 mp

Etaj 65.2 mp utili

🛏️ Dormitor matrimonial – 23.5 mp

🛏️ Dormitor 2 – 13.5 mp

🛏️ Dormitor 3 – 13 mp

🛁 Baie – 5.1 mp

🧭 Hol – 10.1 mp

🌤️ 2 Balcoane – 4.0 mp și 5.2 mp

Finisaje clasice, complet funcțional și gata de locuit

Mobilier inclus

Electrocasnice incluse: plită, cuptor, frigider, mașină de spălat etc.

Zonă curată, fără trafic intens – ideală pentru familii

Curte liberă cu gazon, spațiu pentru relaxare sau foișor

💰 Preț: 235.000 €

📞 Contact: 0728674712 Sorin Bacila!

📆 Disponibil pentru vizionare cu programare în prealabil

Citește mai mult

  • Număr camere
    4
  • Dormitoare
    3
  • Număr bucătării
    1
  • Număr băi
    2
  • Geam la baie
    Da
  • Număr balcoane
    2
  • Număr terase
    1
  • Număr garaje
    1
  • Număr locuri parcare
    2
  • Disponibilitate
    Imediat
  • Tip casă
    Duplex
  • Stare interior
    Finisat clasic
  • Anul finisării
    2008
  • Suprafață utilă
    132 mp
  • Suprafață construită la sol (Amprentă)
    80.0 mp
  • Suprafață teren
    300 mp
  • Suprafață curte liberă
    220 mp
  • Suprafață terasă
    30 mp
  • Deschidere
    11 m
  • Acoperiș
    Țiglă
  • Stadiu construcție
    Finalizată
  • An construcție
    2008
  • Construcție nouă
    Da
  • Tip construcție
    Cărămidă
  • Număr etaje clădire
    1
  • Are mansardă
    Da
  • Are pod
    Da

Facilități

Acces pentru persoane cu dizabilități
Apă
Apometre
Aragaz
Bucătărie închisă
Bucătărie utilată
Cabină de duș
Cadă
Calorifere
Canalizare
CATV
Centrală proprie
Contor căldură
Contor electric
Contor gaz
Curent
Curte
Debara
Dressing
Ferestre care se deschid
Ferestre PVC
Frigider
Garaj
Gaz
Geamuri termopan
Glet
Grădină proprie
Gresie
Hotă
Iluminat stradal
Internet
Izolație exterioară
Loc de joacă copii
Magazie
Mașină de spălat rufe
Mijloace de transport în comun
Mobilat complet
Mochetă
Parcare acoperită
Parcare biciclete
Parcare deschisă
Parchet
Străzi asfaltate
Telefon
Ușă intrare PVC
Uși interior lemn
Vopsea lavabilă
WC Serviciu
Zonă pentru barbeque
Sorin Băcilă - Tower Imob
Sorin Băcilă
Consultant Imobiliar

0728674712


Solicită chiar acum o vizionare
Telefon
Sună acum Solicită vizionare
Necesare:

Site-ul nu poate funcționa corect fără aceste cookie-uri. Vezi cookie-urile

Statistică:

Strângem statistici anonime despre voi, vizitatorii unici, pentru a vă îmbunătăți experiența dumneavoastră. Vezi cookie-urile

Marketing:

Pentru a ne promova mai eficient serviciile noastre, folosim cookies pentru a vă identifica și a vă oferi proprietăți și servicii personalizate. Vezi cookie-urile

Acest site folosește cookies, află detalii. Alege ce tipuri de cookies dorești să permitem: